keykavoos
Location: Motahari, Tehran, Iran
Design: VilLETta Architecture Studio
Project Area: 600 m²
Built-up Area: 3,000 m²
Project Type: Residential Complex
Status: Designed
Design Year: 2025
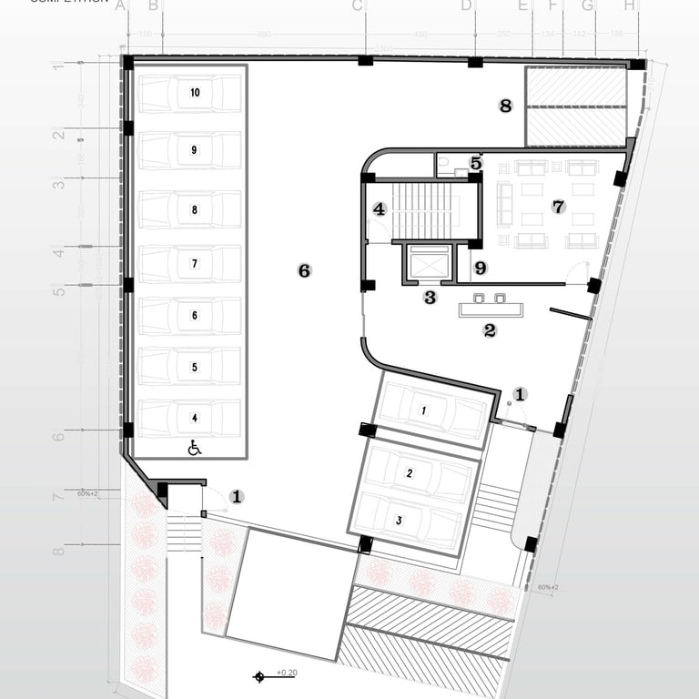
This project, located in Tehran, features a reinforced concrete structure with waffle slab ceilings. The building consists of five residential floors, with three units on each floor. The total built-up area is approximately 3,000 square meters on a land plot of 600 square meters.








